Квартира, 67 м², Iasi
Bucium, Iasi, Iasi
Характеристики
Предупреждения (7)
- На 42% дешевле медианы по району — проверьте описание
- Реальное фото показывает голые кирпичные стены, бетон, коммуникации не завершены
- Смешаны рендеры будущего интерьера и реальное фото голой стройки
- Смешаны рендеры будущего ремонта и реальное состояние (голые стены/кирпич). Вводит в заблуждение.
- Фактическое состояние — черновая отделка, без коммуникаций, требует полного ремонта.
- Фото 1 и 3 — явные рендеры дизайн-проекта, не реальные фото
- Фото 1 и 3 — явные рендеры дизайн-проекта, не реальные фото. Фото 2 — реальная черновая отделка.
Описание
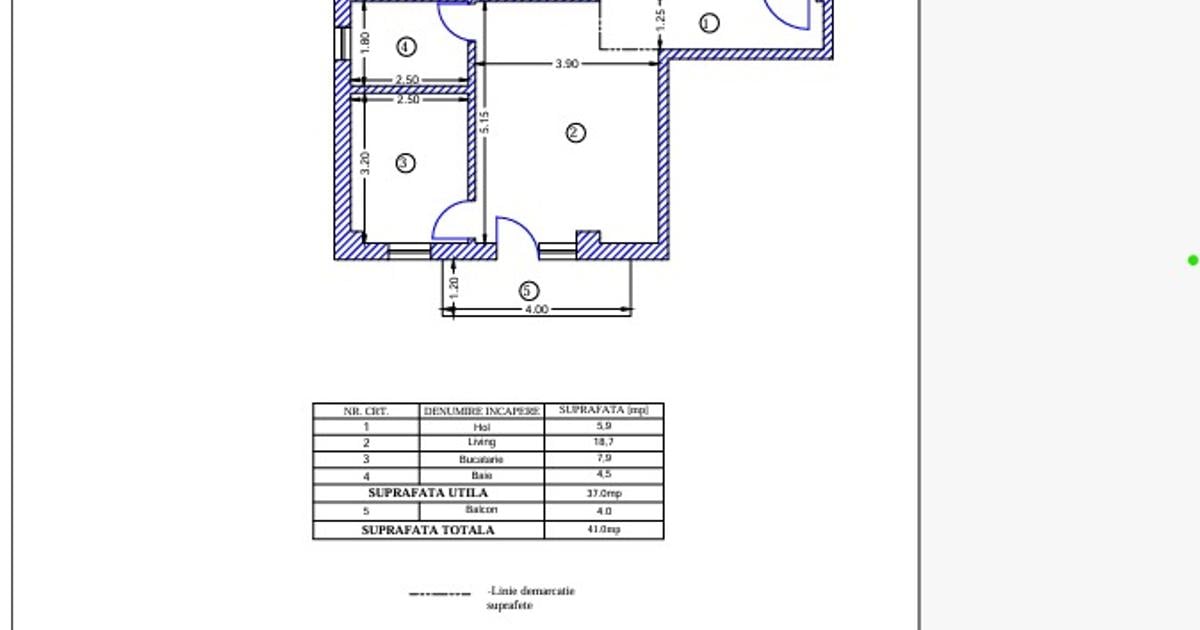
Жилой комплекс | Bucium-Vișan (5,5 км от Palas Mall) Представляем на продажу трёхкомнатную квартиру открытой планировки на 1-м этаже в современном комплексе с оптимальной высотой зданий и высокими стандартами качества. Характеристики квартиры: Полезная площадь: 67 м². Конфигурация: гостиная + кухня открытой планировки, спальня, спальня с ванной, прихожая. Дата передачи: август 2026. В комплексе также доступны квартиры большей площади. Конструктивные решения и теплоизоляция: Кладка: цельная кирпичная (несущие стены и внутренние перегородки). Внешняя изоляция: графитный полистирол (теплотехнические характеристики на 20% выше, чем у классического вспененного полистирола). Оконно-дверные системы: ПВХ, профиль с 6 камерами, тройное остекление (3 стекла), высокий класс звуко- и теплоизоляции. Отделка и внутреннее оборудование: Система отопления: тёплый пол (равномерное распределение тепла и энергоэффективность). Керамическая плитка: керамогранит и плитка формата 60x120 см премиум-качества. Полы: ламинированный паркет для интенсивных нагрузок. Двери: внутренние из МДФ; входная дверь стальная, защита от взлома. Доступ: современный лифт последнего поколения. Финансовые условия: Стартовая цена: 83 000 € + НДС
€83 000
€1 239/м²
Отличная сделка — цена на 15%+ ниже медианы района
