Продажа 2-комн. кв. 77.8 м² — Gorod turar-joy majmuasi
Обновлено: 1 ч. назад
Комнаты
2
Общая площадь
77 м²
Этаж
4 / 10
Тип дома
Квартира
Ремонт
черновая
Год постройки
—
Санузел
2 санузел
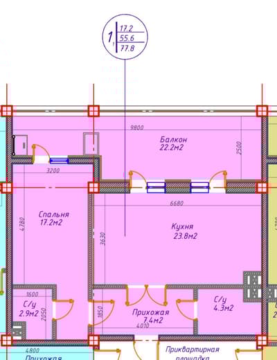
Описание
Продается 2-комнатная квартира в новостройке,2/4/10-92 000 у.е на Паркентском, ЖК Gorod. Ориентир: банк Тенге. Площадь 77,8 м²,2 с/у.Терраса.Состояние: коробка.Кадастр в середине 2026.
Мирзо-Улугбек · Ташкент
Google MapsАналитика цены
$92,000$1,195/м²Ниже рынка
Объект
$1,195/м²
Медиана
$1,620/м²
-26% ниже рынка
Выгодное предложение — цена ниже медианы сегмента
Расчёт...
Найдено в 1 источнике
U
Uybor


