2/хона 1/кават Новостройка Алмазар Карокамиш 1/2
Описание
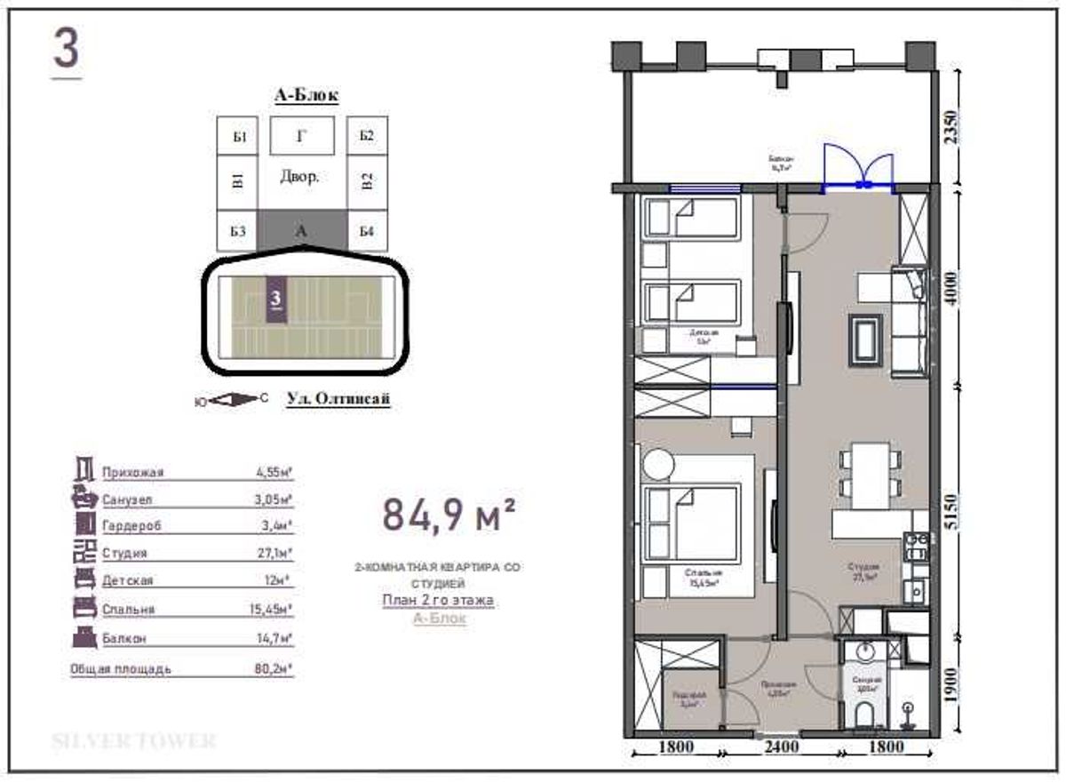
Сурочно Сотилади Олмазор тумани Коракамиш 1/2 Кулайн нархда янги курилган куп кватли ЖК «SILVER TOWER» «BETTER BEST» дан хонадонлар сотилади худди шу планировкада А-Блок 2-хона+(Студия) 2-каватда 1 та 20 кватли уй умумий 1 та хонадон майдони: 84,90 м2 нархи 72.165 $ 1 кв.м нархи 850$ 1 м2 нархи 850 $ Хонадон сурочниа нархарда сотилади сыкидка нархда сотилвотти сотув булимида колмаган курувчининг узи 1 кв.м ни 1.000 у.е дан соткан турур жой конплексининг хозирги холати хамма кватлари ва хамма уйлар кутарилиб куриб булинган ташки безак ва ховлини тамирлаш ишлари давом етмокда 2026 йлнинг январ ойида хонадон егаларига тамирлаш ишларини бошлаш учун топширилади квдастир хужатлари 2026 йилнинг урталарида чикади бундан бошка хонадонлархам мавжуд узингизга йоккан планировкадан танлаб олаверасиз афармления чекиниш шартномаси (договур уступка) асосида утказиб берилади мурожат учун тел: +998971177775
Аналитика цены
Нет данных для сравнения с медианой.
