U TOWER Продажа 5/26+27/27 356м² VIP CLASS Терраса 300м² в подарок
Описание
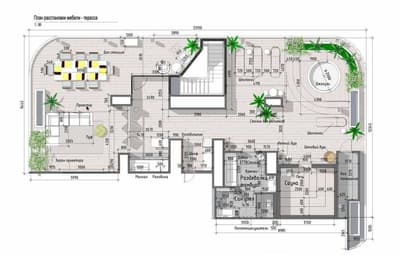
ЦЕНА СНИЖЕНА Продается квартира Эксклюзив! ЖК NRG U-Tower Пентхаус с большой террасой Вид: На Tashkent City и на Дружбу Народов Панорамное обозрение на город Высота потолков: 4 метра Состояние: Коробка Комнат – 5 (свободная планировка) Кол-во сан узлов: 5 Этаж – 26+27 Этажность – 26 Площадь по кадастру – 356,88 м² Терраса 300м² в подарок Цена: 2661$ за 1м2 (950000$) ПРОДАЖА Эксклюзивное предложение для клиентов, ценящих уникальность. По вопросам цены обращайтесь в личные сообщения — мы предоставим вам максимально выгодную скидку. Имеется дизайн проект Показ в любое время «Установленная цена может корректироваться исходя из официального курса Центрального банка.» Агентство недвижимости: „JZ STAR ESTATE” График работы; от 10:00 до 19:00. Дополнительная информация по Номеру +998909376161
Аналитика цены
Нет данных для сравнения с медианой.



