"СРОЧНАЯ ЦЕНА‼️ Nest one 1в2 ком 48м2 + Терасса Вид Ташкент Сити ‼️
Описание
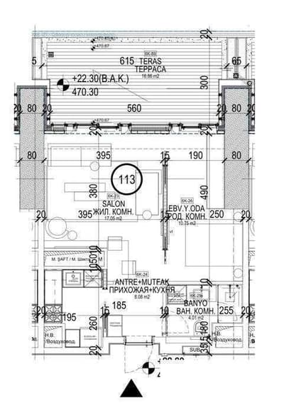
Nest One Застройщик: Murad Building Кадастр: есть Комнаты: 1–2 Этаж: 6 Этажность: 51 Площадь: 48 м² + терраса 15 м² (общая 63 м²) Ремонт: коробка Планировка: 2 окна + терраса Санузел: совмещённый Тип строения: монолит Ориентир: Ташкент Сити, Дружба Народов Дополнительная информация: вид на Ташкент Сити Цена: 207 999у.е., срочно Телефон: +998 77 003 29 22 O‘zbekcha Nest One Quruvchi: Murad Building Kadastr: bor Xonalar: 1–2 Qavat: 6 Qavatlar soni: 51 Maydon: 48 m² + 15 m² terrassa (umumiy 63 m²) Ta’mir: quticha holatda Reja: 2 ta deraza + terrassa Sanuzel: birlashtirilgan Bino turi: monolit Mo‘ljal: Toshkent Siti, Do‘stlik xalqlari Qo‘shimcha ma’lumot: Toshkent Siti manzarasi Narxi: 207 999 y.e., shoshilinch Telefon: +998 77 003 29 22
Аналитика цены
Нет данных для сравнения с медианой.


